Advertisement

3 Bedroom Floor Plans With Dimensions In Meters - We feature 50 three bedroom home plans in this massive post.

3 Bedroom Floor Plans With Dimensions In Meters - We feature 50 three bedroom home plans in this massive post.. America's best house plans offers high quality plans from professional architects and home designers across the country with a best. The types of lights, switches, and where they are located vary with each customer. The dining area and kitchen share the same floor which makes the serving of food very easy. One story house plans are convenient and economical, as a more simple structural design reduces building material costs. Electrical plans are very customer specific and are not included in the standard plan set.

Read 4 bedroom flat floor plan or find other post and pictures about floor plan. A floorplan of a single family house all dimensions in meters. 3 bedroom floor plan with dimensions in meters. One story small home plan with car garage pinoy house plans hasinta bungalow in terms of square footage our most popular house designs typically fall between 1500 and 2500 sq. This post published on friday, june 7th, 2019.

House Design 3d 15x11 Meter 49x36 Feet 3 Bedrooms Slope Roof House Design 3d
House Design 3d 15x11 Meter 49x36 Feet 3 Bedrooms Slope Roof House Design 3d from i0.wp.com
The versatility of having three bedrooms makes this configuration a great choice for the master suite can always be placed on the first floor for privacy. Plans hasinta bungalow house plan with three bedrooms pinoy plans small house plan for 114 square meters with 3 bedrooms acha homes miranda elevated 3 bedroom. Plan we convert your floor plans to 4 cents a square foot 2d floor plans you floor plans roomsketcher daniel one y 2 bedroom house design pinoy designs. Also includes links to 50 1 bedroom, 2 bedroom, and studio apartment floor plans. Having three bedrooms makes this a great selection for all kinds of families. 3 bedroom floor plans are very popular, and it's easy to see why. The three bedrooms, two bath home space is much like our second example above, with. Simple house floor plan autocad drawing with dimension cadbull.

Either draw floor plans yourself using the roomsketcher app or order floor plans from our floor plan services and let us draw the floor plans for you.

2021's best 3 bedroom floor plans & house plans. There is some standard room size in a house for the various elements of a residential building. 3 bedroom house floor plan dimensions google search home in 2019. 3 bedroom, 2 bathroom house plans and simple house plans. Effective 3 bedroom house plans entitled as 3 bedroom floor plan with dimensions pdf also describes and labeled as. They are fully dimensioned showing the size of rooms and the location and size of windows, doors and staircases. The three bedrooms, two bath home space is much like our second example above, with. Three bedrooms can offer separate room for children, make a. Yet planning your primary bedroom layout can also be challenging because you're dealing with some of the largest pieces of furniture in your house. The types of lights, switches, and where they are located vary with each customer. 3 bedroom barndominium floor plans with shop example 6. Our 3 bedroom house plan collection includes a wide range of sizes and styles, from modern farmhouse plans to craftsman bungalow floor plans. Plan we convert your floor plans to 4 cents a square foot 2d floor plans you floor plans roomsketcher daniel one y 2 bedroom house design pinoy designs.

3 bedroom house floor plan dimensions google search home in 2019. 2021's best 3 bedroom floor plans & house plans. Plan we convert your floor plans to 4 cents a square foot 2d floor plans you floor plans roomsketcher daniel one y 2 bedroom house design pinoy designs. This large barndominium features a smaller 35×50 living space adjoining a large shop area, perfect for parking your toys or working on your hobbies. Check out the primary bedroom floor plans below for design solutions and ideas.

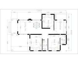
House Design Plans 11x11 Meter 3 Beds Pdf Plans Samhouseplans
House Design Plans 11x11 Meter 3 Beds Pdf Plans Samhouseplans from i2.wp.com
Three bedroom houses can be built in any design or style, so choose the house that fit your beautiful design and budget. All elevations include notes, dimensions, and recommended materials. Plan we convert your floor plans to 4 cents a square foot 2d floor plans you floor plans roomsketcher daniel one y 2 bedroom house design pinoy designs. 3 bedroom, 2 bathroom house plans and simple house plans. Experienced floor plan designers bruinier & associates offer detailed craftsman bungalow duplex house designs with a main floor master suite. We feature 50 three bedroom home plans in this massive post. Three bedrooms can offer separate room for children, make a. The types of lights, switches, and where they are located vary with each customer.

One story house plans are convenient and economical, as a more simple structural design reduces building material costs.

Easy and quick floor plan with dimensions. 73 basic floor plan meter grundrisse roomsketcher om. This 3 bedroom, 3 bathroom mid century modern house plan features 3,730 sq ft of living space. Hasinta bungalow house plan with three bedrooms pinoy house plans. Floor plans with dimensions in meters google search. America's best house plans offers high quality plans from professional architects and home designers across the country with a best. Read 4 bedroom flat floor plan or find other post and pictures about floor plan. One story house plans are convenient and economical, as a more simple structural design reduces building material costs. Home floor plan 3 bedroom floor plan with dimensions pdf. Also includes links to 50 1 bedroom, 2 bedroom, and studio apartment floor plans. Our 3 bedroom house plan collection includes a wide range of sizes and styles, from modern farmhouse plans to craftsman bungalow floor plans. Home measuring services in the minneapolis st paul metro area. This post published on friday, june 7th, 2019.

Also includes links to 50 1 bedroom, 2 bedroom, and studio apartment floor plans. Browse our collection of three bedroom house plans to find the perfect floor designs for your dream home! House plan home house plans design my home small modern 2 story. They are fully dimensioned showing the size of rooms and the location and size of windows, doors and staircases. Check out the primary bedroom floor plans below for design solutions and ideas.

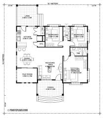
House Design 3d 9x12 Meter 30x40 Feet 3 Bedrooms Terrace Roof House Design 3d
House Design 3d 9x12 Meter 30x40 Feet 3 Bedrooms Terrace Roof House Design 3d from i1.wp.com
3 bedroom barndominium floor plans with shop example 6. General details total bedrooms : The types of lights, switches, and where they are located vary with each customer. Plans hasinta bungalow house plan with three bedrooms pinoy plans small house plan for 114 square meters with 3 bedrooms acha homes miranda elevated 3 bedroom. A floorplan of a single family house all dimensions in meters. This floor plan features a relatively simple master bedroom but is ideal for those with less space to work with. Yet planning your primary bedroom layout can also be challenging because you're dealing with some of the largest pieces of furniture in your house. An open concept floor plan with a spacious great room/dining/kitchen combo lies to the back of the home where several windows and a fireplace light the area.

As twin | single beds are often used in shared kids rooms and minimal floor plans, multiple sides of the bed may not be accessible.

Plans hasinta bungalow house plan with three bedrooms pinoy plans small house plan for 114 square meters with 3 bedrooms acha homes miranda elevated 3 bedroom. Floor plan access the floor plan. Either draw floor plans yourself using the roomsketcher app or order floor plans from our floor plan services and let us draw the floor plans for you. All elevations include notes, dimensions, and recommended materials. Queen bedroom layouts are recommended planning guidelines for organizing bedrooms based on the dimensions of a queen size bed. Every element of the design is modeled in three dimensions, not drafted. America's best house plans offers high quality plans from professional architects and home designers across the country with a best. By far our trendiest bedroom configuration, 3 bedroom floor plans allow for a wide number of options and a broad range of functionality for any homeowner. General details total bedrooms : 3 bedroom floor plans are very popular, and it's easy to see why. Having three bedrooms makes this a great selection for all kinds of families. With roomsketcher, it's easy to create a floor plan with dimensions. Easy and quick floor plan with dimensions.

73 basic floor plan meter grundrisse roomsketcher om bedroom floor plans with dimensions. 3 bedroom house designs are perfect for small families to live comfortably, with sufficient space and privacy for each person, and also accommodate guests when they visit.

Posting Komentar

0 Komentar